In dem schönen Örtchen Langstadt (nur 4 km von Babenhausen entfernt) liegt in zentraler Lage dieses um 1900 erbaute Ensemble mit einem Haus, welches 1964 und in den 80ern umfassend modernisiert wurde...einer sehr gut erhaltenen Scheune mit angrenzendem Garten und Freisitz sowie einer daran anschliessenden großen Nutzgartenfläche.
Das gesamte Grundstück umfasst 1001 m² und das Wohnhaus bietet auf drei Etagen eine Wohnfläche von ca. 153 m².
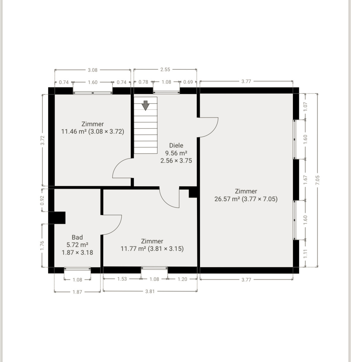
Das derzeit als Zweifamilienhaus aufgeteilte Objekt liegt an einer Durchfahrtsstraße und bietet Ihnen mit der jetzigen Aufteilung insgesamt sechs Zimmer, zwei Küchen und zwei Bäder.
Der Garten sowie der daran angrenzende Nutzgartenbereich bietet Ihnen und Ihren Lieben viel Freiraum, welcher seinesgleichen sucht.
Ob für die Individualisten, die große Familie oder den Wunsch Wohnen und Arbeiten zu verbinden - alles ist hier realisierbar.
Ab sofort für Sie verfügbar!
Wir haben Ihr Interesse geweckt? Dann senden Sie uns bitte vorab Ihre persönliche Anfrage über das vollständig ausgefüllte Kontaktformular mit detaillierten Angaben zu Ihrer Person. Wir kontaktieren Sie dann sehr gerne nach erfolgter Vorauswahl zur Vereinbarung eines Besichtigungstermines und zur Besprechung weiterer Details. Wir freuen uns auf Sie!
Dieses Angebot wird für Sie in exklusiver Kooperation mit Stephanie Friedlein Immobilien angeboten.
Wohnhaus:
- Isolierte Aluminiumfassade
- Isolierglasfenster teilweise Baujahr 2010
- Brennwerttherme der Marke Wolf (Flüssiggas) Baujahr 2020
- Gewölbekeller
Erdgeschoss:
- 2 Zimmer mit 58 m² Wohnfläche
- Einbauküche
- Duschbad mit bodengleicher Dusche
Ober- u. Dachgechoss:
- 4 Zimmer, Küche, Bad (Maisonette-Wohnung)
- Einbauküche
Allgemein:
- gepflasterte Hoffläche
- große Scheune mit Durchfahrmöglichkeit zum Garten
- überdachter Freisitz
- großer Nutzgarten
u.v.m.
Die Gemeinde Langstadt ist der zweitgrößte Ortsteil der Kleinstadt Babenhausen in Südhessen mit knapp 1700 Einwohnern im Landkreis Darmstadt Dieburg.
Langstadt liegt an den ersten Ausläufern des nördlichen Odenwaldes und ist in seiner dörflichen Struktur besonders gut erhalten. Der Ort ist wunderschön gelegen – umgeben von Wiesen und Wäldern.
Babenhausen als Kernstadt hat einen wunderschönen Altstadtbereich und gilt als eine der waldreichsten Kommunen Südhessens.
Eine gute Infrastruktur macht die rund 1.600 Einwohner zählende Gemeinde besonders lebenswert. Mit der Odenwaldbahn können Sie auf direktem Weg den Hauptbahnhof in Frankfurt zu erreichen. Die Autobahn erreichen Sie in ca. 10 Fahrtminuten.
Junge Familien schätzen die vielfältigen Möglichkeiten der Kinderbetreuung. Ein neuer, sehr attraktiver Spielplatz, der Kindergarten – ab 2014 als Kindertagesstätte erweitert – und die Grundschule, an der auch eine Ganztagsbetreuung angeboten wird. Aber auch für die heranwachsenden Jugendlichen gibt es eine Vielzahl von Entfaltungsmöglichkeiten.
Viele der angebotenen sportlichen und kulturellen Veranstaltungen finden in der 2011 um eine Sporthalle erweiterten Markwaldhalle statt. Seit Herbst 2013 befindet sich im Dorfzentrum auch wieder ein Lebensmittelgeschäft, der „Langstädter Laden“, der die Nahversorgung des Stadtteils sicherstellt.
Die Region, in der sich diese Immobilie befindet, ist geprägt von idyllischen Landschaften und bietet vielfältige Möglichkeiten für Outdoor-Aktivitäten wie Wandern, Radfahren und Wassersport. Auch kulturell hat die Region einiges zu bieten, mit historischen Städten, Schlössern und Museen. Die gute Lebensqualität und die naturnahe Umgebung machen diese Region zu einem attraktiven Wohnort für Naturliebhaber und Erholungssuchende.
Wichtig!
Bitte beachten Sie, dass wir gemäß Geldwäschegesetz nach § 3 Abs. 1 GwG sowie § 4 Abs. 3, Nr. 1 GwG verpflichtet sind, bei näherem Interesse an unseren Angeboten Ihre Identität in Form Ihrer persönlichen Daten festzuhalten. Aus diesem Grund bitten wir Sie, unser in den Portalen hinterlegtes Anfrageformular vollständig auszufüllen und zu einer gewünschten Besichtigung einen gültigen Personalausweis mitzubringen. Weitere Informationen hierzu können gerne in einem unserer Büros erfragt werden.
Sie planen den Verkauf oder die Vermietung Ihrer Immobilie?
Mobil am Immobilienmarkt - wir bieten Ihnen eine umfangreiche und fachkompetente Beratung in sämtlichen Fragen rund um Immobilien in Reinheim sowie im Landkreis Darmstadt-Dieburg. Erfahrung, Fachwissen und Marktkenntnis verbinden wir mit modernster Kommunikation und stehen Ihnen gerne als qualifizierter Partner zur Verfügung.
Nehmen Sie Kontakt mit uns auf. Wir beraten Sie gerne, geben Hintergrundinformationen und zeigen Möglichkeiten auf.
Einfach, klar und unkompliziert.
Sie erreichen uns unter:
Degenhardt Immobilien Reinheim
Dirk Degenhardt Telefon 06162-919177
Kooperationspartner
Stephanie Friedlein Immobilien
Stephanie Friedlein Telefon 06071 – 827871 / Mobil 0163-6249274
Mail: service@friedlein-immobilien.de
Besuchen Sie uns auch auf Facebook:
http://de-de.facebook.com/pages/Degenhardt-Immobilien/269946213066099





























